摘 要:该文提出了一种框架-预应力摇摆墙新型结构形式,其中摇摆墙脚部混凝土采用橡胶块替代,并通过墙内预埋的无粘结预应力筋与基础进行贯穿连接,摇摆墙与主体框架则采用耗能连接件相连。通过一榀框架试件和一榀框架-预应力摇摆墙试件的拟静力试验,研究了试件的破坏形态、承载能力、刚度退化和耗能能力等抗震性能。结果表明:框架-预应力摇摆墙结构的破坏有效地集中在耗能连接件上,梁端、柱端以及梁柱节点区的破坏相对较轻;极限承载能力提升显著,相较对比框架提高了112.4%;耗能能力较对比框架大幅提升,且各层层间变形趋于均匀;耗能连接件发挥出了良好的延性变形能力,且施工方便、造价低,实现了可更换构件与摇摆结构的有机结合。
关键词:框架-预应力摇摆墙;耗能连接件;可更换;抗震性能;拟静力试验
摇摆结构是可恢复功能结构的一种实现形式,它通过放松结构与基础交界面处或结构构件交界面处的某些约束,允许结构在放松位置处发生一定的相对变形,从而改变结构中各构件的受力状态、减少结构损伤,提高结构的抗震性能[1-2]。摇摆墙作为一种同时适用于新建建筑和既有建筑加固改造的摇摆构件,具有广阔的应用前景[3]。将摇摆墙构件应用于既有框架结构的改造加固,不仅能有效提升其抗震性能,且可有效改善框架结构的变形模式和屈服机制[4-5],已成为摇摆结构领域的研究热点之一。
Zibaei等[6]通过Pushover对比分析了10层及20层的混凝土框架、框架-剪力墙和框架-摇摆墙的受力性能,结果表明框架和框架-摇摆墙的延性均较好,而框架-摇摆墙中的塑性铰形成及层间位移更为均匀。Grigorian等[7-8]针对框架-摇摆墙结构体系的设计方法和计算程序开展了研究,提出了该类结构体系的概念设计思路、理论分析方法和高效计算程序。经数值方法验证,研究成果是准确且高效的,但缺乏有效的试验验证。Wu等[9]针对内嵌摇摆墙的框架结构体系展开了试验研究,在墙体底部安装了一种可抬升的钢板抗剪连接装置,并在梁柱节点处设置了摩擦阻尼器。研究结果表明,该体系具有良好的抗震性能和自复位特性。此外,吴守君等[4]通过动力弹塑性时程方法分析一个摇摆墙抗震加固应用案例,提出了同时增设预应力钢筋和金属屈服型阻尼器的具体方法和连接构造。分析结果表明,摇摆墙加固方案能使塑性铰的分布更加均匀,增设的预应力钢筋和金属屈服型阻尼器显著提高了结构耗能能力,减小了残余变形。曹海韵等[10-11]等针对框架-摇摆墙结构体系中的连接节点展开了试验研究,提出了一种摇摆墙与框架间的凹凸咬合楼层连接件和一种墙底与基础间插钢棍的墙底连接件,通过试验研究了所设计连接节点的转动性能,实现了摇摆墙的有限转动。杨树标等[12-14]通过振动台试验研究了一个内嵌式框架-摇摆墙模型的破坏机制和抗震性能,并利用数值方法进一步研究了摇摆墙刚度对框架-摇摆墙结构抗震性能的影响。研究结果表明,内嵌式框架-摇摆墙结构呈明显的整体破坏机制,抗震性能得到较大提升,但由于墙体与梁间采用了连接钢筋,使得与摇摆墙相连一跨的框架柱、梁损伤严重。张富文等[15-16]提出了两种新型的摇摆墙与框架及摇摆墙与基础之间的可更换节点设计形式,通过拟静力试验研究了采用新型节点形式的框架-摇摆墙模型的抗震性能。研究结果表明,框 架-摇摆墙的失效集中在预期构件上,但由于连接节点过早断裂,后期框架-摇摆墙结构的承载力退化显著。
目前,虽然围绕框架-摇摆墙结构体系已经开展了一些理论分析、试验研究和工程加固研究,但尚未形成系统的设计方法,且在推向工程应用时也存在构造复杂、施工难度大和造价较高等问题。基于此,本文提出了一种框架-预应力摇摆墙结构形式,在摇摆墙与基础之间采用预应力筋贯穿连接,两者在交界面处脱离,并在摇摆墙易压碎的脚部区域预埋橡胶块,以及在摇摆墙与框架柱之间采用一种低造价的可更换工字型耗能连接件,从而形成集摇摆和可更换特性于一体,且构造简单、施工方便和造价低的可恢复功能结构体系,通过低周反复荷载试验研究该体系的抗震性能和破坏模式。
为了增加框架-摇摆墙体系的耗能能力,有效保护框架柱和墙体,改善结构的耗能模式,在框架柱与摇摆墙之间设计了工字型耗能连接件,在小震作用下能够有效传递水平力,在中、大震作用下能够发生延性变形,发挥其耗能能力。
本试验设计的耗能连接件,中部为工字型截面,两端为具有一定厚度的矩形钢板,钢板上开有螺栓孔,通过高强螺栓实现连接件与摇摆墙、框架柱的连接。该连接件采用Q235钢材制作,成本较低、延性性能较好,且采用螺栓连接,便于震后更换。
耗能连接件的设计图及实物图如图1所示。
摇摆墙中的无粘结预应力筋依次贯穿墙体和基础中上下对应的预留孔道,通过锚固装置进行预应力筋端部固定,其中墙体顶部为张拉端,基础预留位置处为固定端。为了避免墙体摇摆过程中位于墙体和基础交界面处的预应力筋发生剪切破坏,在基础的预留孔道内预先埋置了一根薄钢管,并在其中嵌入了具有一定厚度的橡胶环。
为了实现墙体的摇摆机制,在摇摆墙易出现混凝土压碎的两个脚部区域设置了橡胶脚支座。橡胶块上开有竖向孔道,墙体内的边缘竖向钢筋从孔道穿过,与橡胶块底部的钢板进行焊接连接,使橡胶脚支座与墙体形成一体协同工作。橡胶块的长度宜取摇摆墙宽度的15%~20%,厚度可按实际需要的压缩量计算取值。
摇摆墙中预应力筋的设计和实物如图2所示。

图1 耗能连接件
Fig.1 Energy dissipation steel connector

图2 摇摆墙中的预应力筋设计
Fig.2 Design of prestressed tendons in rocking wall
本次试验中,制作了对比框架试件和框架-预应力摇摆墙试件各一个,编号分别为CF和FPRW,均为1∶2缩尺的3层3跨试件。各个试件的各层层高为1500 mm,各跨跨度为1800 mm。在试件各柱端和梁端分别延伸出300 mm,并进行箍筋加密和缠绕碳纤维布的局部加强设计,便于竖向荷载和水平荷载的顺利施加。
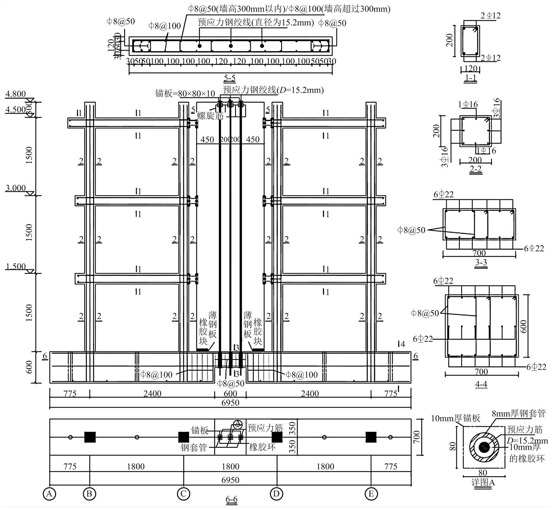
对比试件CF框架柱截面尺寸为200 mm× 200 mm,框架梁截面尺寸为120 mm×200 mm,按照强柱弱梁设计。试件FPRW是在试件CF的基础上,用预应力摇摆墙代替框架中间跨的梁,并在摇摆墙和框架柱之间增设耗能连接件。两个试件的框架梁、柱尺寸及配筋均相同,试件FPRW的尺寸及配筋如图3所示。
试件FPRW中摇摆墙的高度、宽度和厚度分别为4800 mm、1300 mm和120 mm。框架柱和摇摆墙之间采用耗能连接件、预埋钢板和高强螺栓进行连接。耗能连接件中间的工字型截面部分高度100 mm、翼缘长度80 mm、翼缘厚度8 mm、腹板厚度6 mm,两边翼缘部分均开有6个直径为16 mm的螺栓孔。在框架柱内和摇摆墙内分别预埋钢板,每个预埋钢板上都留有两组螺栓孔,一组用于与耗能连接件连接,一组用于与柱内或墙内纵向钢筋连接;耗能连接件的中心、预埋钢板的中心和梁截面的中心保持在同一水平轴上,如图1所示。
根据试件FPRW的摇摆墙设计方案和预估承载力,选用了3根公称直径为AS=15.2 mm的低松弛钢绞线,极限抗拉强度标准值为1860 N/mm2,张拉控制应力取为0.7fptk。3根预应力筋在摇摆墙内居中布置,间距为200 mm,如图2所示。基础预留孔道内预埋薄钢管的外径为48 mm,内径为40 mm,厚度为8 mm;钢管内所嵌橡胶环厚度为10 mm。摇摆墙吊装到位后进行钢绞线布置并进行张拉和锚固。
试件CF基础梁截面尺寸为700 mm×400 mm,在框架-预应力摇摆墙试件FPRW中,为了便于预应力筋下端的锚固,将其基础高度增加到600 mm,并在居中位置预留出600 mm×300 mm的缺口,便于锚具的安装。为了确保基础缺口位置处的强度,在该位置处增设了弯起纵筋和加密箍筋。
试验中各试件框架梁、柱和摇摆墙的混凝土强度设计等级均为C30,实测试件CF的混凝土立方体平均抗压强度为38.9 MPa,实测试件FPRW的框架部分和摇摆墙部分的混凝土立方体平均抗压强度分别为40.8 MPa和43.4 MPa。

图3 框架-预应力摇摆墙试件的几何尺寸及配筋
Fig.3 Dimensions and reinforcement of frame-prestressed rocking wall specimen
试验中共用到了4种钢筋,分别为A6、A8、B12和B16,实测屈服强度分别为408 MPa、319 MPa、433 MPa和411 MPa;实测极限强度分别为619 MPa、520MPa、602 MPa和597 MPa。
试验中耗能连接件及预埋钢板均采用Q235钢材制作,实测屈服强度和极限强度均值分别为273 MPa和402 MPa。
试验中所用预应力钢绞线fptk=1860 MPa,实测0.2%屈服强度为1345 MPa,极限强度为1498 MPa,最大荷载下的总伸长率均值为4.67%。
试验所用橡胶的邵氏硬度为59,拉伸强度为20 MPa,压缩性弹性模量为4.5 MPa,扯断伸长率为545%。
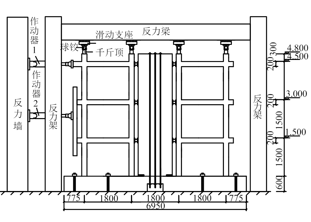
本次试验为拟静力低周往复加载,加载装置由竖向加载装置和水平加载装置组成,如图4所示。竖向轴压力通过钢反力梁和千斤顶进行加载,两者之间放置了可以自由滑动的滚轴。各框架柱的控制轴压比为0.3,各柱顶部施加的恒定竖向荷载为143 kN。摇摆墙顶部不施加竖向荷载。水平荷载由液压伺服作动器施加。

图4 试验装置
Fig.4 Test setup
由于仅有两个作动器,试验中在1层和2层框架梁之间固定一根钢梁进行水平荷载分配,其中一个作动器作用在顶层梁中心线,另一个作动器作用在分配钢梁上,并距1层和2层框架梁中心线之比为2∶1。试验过程中保证两作动器水平荷载比值为1∶1,则顶层、2层和1层框架梁中心处水平荷载之比始终保持为3∶2∶1。
水平加载全程采用位移控制模式[4],加载制度如图5所示。其中,加载工况1和工况2主要用于捕捉试件的初始开裂状态,由于试件基本处于弹性状态,因此只进行1次加载循环,不考虑刚度和强度退化,其余工况均进行3次循环加载。顶点位移角为1/25的工况对应于美国FEMA273中“防止倒塌”性能水准点下的顶点位移角限值。当某级加载的第1圈循环荷载低于最大荷载值的85%时,认为结构失效,停止加载[17]。
试验过程中对试件的荷载、位移和应变等进行了测试,以试件FPRW为例,测点布置如图6所示。其中,采用位移计量测的主要内容为:1) 各层梁中心线位置处的水平位移;2) 摇摆墙底部两端竖向位移,以及摇摆墙底部和顶部的中心位置处的水平绝对位移;3) 基础的水平位移;4) 底层柱根部的转角位移。采用应变片量测的主要内容为:1) 柱底钢筋应变及开裂前的混凝土应变;2) 梁端钢筋应变及开裂前的混凝土应变;3) 耗能连接件的轴向应变与剪切应变。作动器的水平荷载和柱顶的竖向荷载,由荷载传感器测试。所有测点的数据由DH3817动态应变数据采集仪自动采集。此外,肉眼观察裂缝发展状况,并辅以裂缝检验规和卷尺测量裂缝宽度和开展长度。

图5 加载制度
Fig.5 Loading history

图6 测点布置图
Fig.6 Layout diagram of measuring devices
加载至±1/1000时,在1层的左梁、中梁和右梁端受拉区各出现一条竖向短裂缝。加载至±1/550时,1层~3层的左梁、中梁和右梁端部以及梁柱交界处均出现新的竖向裂缝,裂缝长度达到梁高的一半。
加载至±1/400时,各层梁端原有竖向裂缝持续开展;1层4条柱子根部均出现1条~2条水平裂缝,裂缝长度贯穿柱子宽度。加载至±1/100时,梁端塑性铰区域内的竖向裂缝已较为密集;1层柱子的一半高度范围内出现十余条水平裂缝,且在中柱的两个梁柱节点区域出现多条交叉斜裂缝,1层和2层的框架梁梁端下部的混凝土发生明显脱落。加载至±1/50时,梁端及柱根混凝土逐渐开裂和轻微剥落,1层~3层柱身水平裂缝迅速增多。
加载至±1/30时,梁端和1层柱根的混凝土明显开裂和剥落,纵筋外露。加载至±1/25时,梁端和柱根处混凝土大块脱落、箍筋外露;2层左梁左端和右梁右端出现纵筋压屈,梁柱节点区域及上下方的柱身混凝土明显开裂。加载至±1/20时,正、反两方向承载力均下降至峰值荷载的85%以下,试验结束。
试件CF的破坏形态和裂缝分布如图7和图8所示。
加载至±1/2000时,首先在1层左梁右端受拉区出现了竖向短裂缝,在右侧中柱柱根出现水平中长裂缝。加载至±1/550时,1层左侧和2层的耗能连接件附近的墙体出现水平裂缝,1层梁端受拉区原有裂缝扩展延伸,且出现新裂缝。

图7 试件CF破坏形态
Fig.7 Failure mode of specimen CF

图8 试件CF的裂缝分布
Fig.8 Crack distribution in specimen CF
加载至±1/400时,1层左侧耗能连接件下部的柱身出现水平裂缝。加载至±1/300时,1层各柱柱底出现明显水平裂缝,1层左侧耗能连接件附近的墙体出现新裂缝,2层和3层左侧耗能连接件附近的柱身出现新裂缝,摇摆墙的脚部橡胶垫旁混凝土发生胀裂。加载至±1/100时,各层耗能连接件发生可见变形,且周边的柱身和墙身出现水平和X向交叉斜裂缝,2层右侧耗能连接件与墙体相连侧的预埋钢板被拉开;墙体底部抬起高度约6 mm,且橡胶块附件混凝土有轻微剥落;各梁端塑性铰区域内的竖向裂缝继续加宽加深,梁柱节点区出现交叉斜裂缝。加载至±1/50时,左右两侧的耗能连接件变形更为明显;墙体脚部抬起明显,抬升高度超过20 mm,且与基础脱离长度超过墙长一半,橡胶垫附近的混凝土发生小面积的压碎和脱落;各柱柱根处混凝土发生小面积压碎,各梁端及其塑性铰区域内的裂缝进一步扩展和加深;梁柱节点区的X向交叉斜裂缝增加数条,裂缝宽度达到3 mm。
加载至±1/40时,连接件显著变形,1层左侧连接件的腹板下沿开裂;墙体脚部的橡胶垫受压膨胀,墙体底部的抬起和摇摆幅度很大;各梁端裂缝进一步扩展,裂缝宽度达4.5 mm,2层左侧梁左端混凝土压碎。加载至±1/30时,连接件严重变形,各梁端、柱根以及墙底处混凝土大块压碎和脱落、箍筋外露。最终在加载至第3圈的+1/30时,右侧中柱柱底混凝土压溃,纵筋屈曲;墙底混凝土压溃,钢筋裸露,箍筋屈曲,橡胶垫严重压缩变形,试验结束。
试件FPRW的破坏形态和裂缝分布分别如图9和图10所示。
由图9~图10可以看出:1) 试件FPRW的梁端和柱端均发生了一定的破坏,但相比试件CF,梁柱的损伤较轻。2) 试件FPRW裂缝主要分布在各层梁端、底层柱下部和摇摆墙底部的橡胶垫附近,工字型连接件两侧的梁柱节点以及墙身出现了一些水平和交叉裂缝,但损伤不严重。3) 摇摆墙墙身裂缝分布相对较少,但底部发生了混凝土的压溃,其原因在于摇摆墙中的预应力筋能有效控制墙身的裂缝开展状况,但也给墙体带来了额外的竖向力。随着加载的进行,墙体发生摇摆幅度越来越大,无粘结预应力筋也不断被拉长,使得墙体局部承受的竖向力不断增加;橡胶块周围的混凝土由于局压增大不断开裂和剥落,使得墙体底部有效承压面积不断减小;最终,摇摆墙底部混凝土压溃、箍筋屈曲。

图9 试件FPRW的破坏形态
Fig.9 Failure mode of specimen FPRW

图10 试件FPRW的裂缝分布
Fig.10 Crack distribution in specimen FPRW
试件荷载-顶层水平位移曲线如图11所示。

图11 各试件的荷载-位移滞回曲线
Fig.11 Load-displacement hysteresis curves of specimens
从图11可以看出:
1) 开裂前,两个试件的滞回曲线狭长细窄,包络面积都很小,荷载和位移基本呈线性关系,残余变形很小。
2) 开裂后,结构进入非线性状态,屈服后两个试件的滞回环形态和包络面积出现显著差异。试件CF的滞回环呈反S形,中部有较明显的捏缩现象,滞回曲线不饱满,包络面积相对较小;而试件FPRW的滞回环呈弓形,中部有轻微捏缩,包络面积较大。
3) 达到峰值荷载后,随着加载的进行,各个试件的承载力均逐渐减小。试件CF承载力减小相对平缓,滞回曲线仍为反S形;试件FPRW承载力减小相对陡急,滞回曲线近似于梭形,非常饱满。
综上可知,相比试件CF,试件FPRW的滞回环非常饱满,说明耗能连接件充分发挥了耗能能力。随着加载的进行,耗能连接件发生了不同程度的延性变形,其耗能能力也在不断增加,使得滞回环形态明显发生了3个阶段的变化,即初始段的线性、屈服段的弓形和强化段的梭形。
各试件的骨架曲线如图12所示,骨架曲线的特征点如表1所示。其中,屈服点按照能量等值法确定,极限点取承载力下降至峰值荷载85%时对应的曲线点,延性系数为极限位移与屈服位移的比值。需要指出的是,由于墙体底部混凝土压溃, 试件FPRW承载力还未下降到峰值荷载的85%即结束试验,故取试验终止时的最终荷载为极限荷载。
由图12和表1可以看出:1) 试件FPRW的初始刚度比试件CF有明显增加。2) 取正、反两个方向的平均值,试件FPRW和试件CF的峰值承载力分别为331.3 kN和156.0 kN,前者比后者提高了112.4%。3) 取正、反两个方向的平均值,试件FPRW和试件CF的延性系数分别为2.77和3.84,前者比后者降低了27.8%。4) 试件FPRW的极限位移角为1/30,而对比试件CF的极限位移角达到了1/20。

图12 各试件的骨架曲线
Fig.12 Skeleton curves of specimens
表1 各试件的骨架曲线特征点
Table 1 Feature points on skeleton curves of specimens

试件方向Fcr/kNDcr/mmFy/kNΔy/mmFmax/kNDmax/mmFu/kNDu/mmμ=Du/Dy CF正向48.254.5186.6654.17225.20110.45191.42202.653.74 反向-47.35-4.5-174.42-52.16-212.70-109.15-180.80-204.803.93 FPRW正向74.202.25415.7759.45490.50111.41480.02148.932.51 反向-76.85-2.25-400.75-48.37-479.07-146.37-479.07-146.373.03
由上述对比分析可见,试件FPRW中的带预应力筋的摇摆墙组件和具有较大抗弯刚度的耗能连接件显著提高了试件的初始刚度和极限承载力;但延性系数和极限变形能力均有所降低,主要是因为摇摆墙底部混凝土区域发生过早压溃,导致试验终止。因此,在后续研究和设计中应对摇摆墙底部进行局部加强处理。
采用环线刚度评价试件的刚度退化,按下式计算[18]:
(1)式中:
为环线刚度;
、
分别为第i级荷载时第j级循环下的承载力峰值与对应顶点位移值。
按式(1)计算每级循环正、反加载的环线刚度,以Ki表示,试件初始刚度以K0表示。各试件的刚度退化曲线见图13。由图13可知,两者的刚度退化特征基本一致,具体为:1) 在加载位移小于50 mm时,由于框架梁、柱的不断开裂,导致整体刚度随着位移及循环次数的增加而快速下降。2) 在加载位移大于50 mm后,两者的刚度退化均呈现出逐渐放缓的趋势,但原因有所不同。试件CF主要是梁端逐渐形成塑性铰而进入屈服状态;而试件FPRW除了梁端之外,摇摆墙底部逐渐开裂和剥落,以及耗能连接件进入塑性变形,也导致了结构刚度的退化。

图13 各试件的刚度退化曲线
Fig.13 Stiffness degradation curves of specimens
结构耗能性能常以荷载-位移曲线(滞回环)所包围的面积来衡量,滞回环越饱满,结构的耗能性能越好。能量耗散系数E是用某循环滞回环所包围的面积与滞回环卸荷段至横坐标轴之间三角形面积之比来定义[17](如图14所示),其计算公式可表示为:
(2)
式中:SABC和SCDA、SDOBE和SDODF分别为图14中对应图形的面积。

图14 能量耗散系数示意图
Fig.14 Energy dissipation coefficient

图15 各试件在各位移循环处的能量耗散系数
Fig.15 Energy dissipation coefficients at various stages of displacement for specimens
图15中给出了试件在不同加载位移水平处的能量耗散系数。由图15可知:1) 在同一级水平位移下,试件FPRW的能量耗散系数E显著大于对比试件CF,最高达对比试件CF的2倍以上。2) 随着水平位移增加,两个试件的能量耗散系数E均有所增加,但试件FPRW的增幅更大。3) 在试验终止前2级,对比试件CF的能量耗散系数E增幅已经平缓,说明其耗能能力已经在逐渐减弱;而试件FPRW的增幅仍在增大,说明其耗能能力仍然在加强。
表2及图16给出了两个试件在不同顶点水平位移下的各层层间位移之比(以底层层间位移为基准)。由表2和图16可知,对比试件CF的层间位移比悬殊较大,而试件FPRW的层间位移趋向均匀化,有效地防止了层倒塌模式。

图16 不同顶点位移水平下各试件的层间位移比
Fig.16 Ratio of different story drifts at various stages of displacement for all specimens
表2 不同顶点位移水平下各试件的层间位移比
Table 2 Ratio of different drifts at various stages of displacement for all specimens

D/mm154590112.5150 CF1∶1.05∶0.781∶1.14∶0.831∶1.15∶0.781∶1.13∶0.781∶1.09∶0.77 FPRW1∶1.31∶1.041∶1.1∶0.931∶0.87∶0.751∶0.85∶0.721∶0.86∶0.71
(1) 耗能连接件有效发挥了延性变形特性,显著提高了试件的耗能能力,减轻了梁端、柱端以及梁柱节点区的损伤,且制作成本较低,安装方便,损坏后便于更换。
(2) 与对比框架相比,框架-预应力摇摆墙结构承载能力和耗能能力均显著增加;但由于摇摆墙底部混凝土过早压溃,导致其延性系数和极限变形能力有所降低。
(3) 框架-预应力摇摆墙能有效改善框架结构的变形模式,使得各层的层间位移趋向均匀,实现了结构整体性破坏模式,避免了层倒塌模式。
(4) 摇摆墙中的预应力筋和脚部橡胶块设计,实现了墙体的有限摇摆,但应对墙体的底部混凝土区域进行局部加强设计,以避免发生局部压溃,影响结构整体抗震性能。
参考文献:
[1] 吕西林, 周颖, 陈聪. 可恢复功能抗震结构新体系研究进展[J]. 地震工程与工程振动, 2014, 34(4): 130-139.
Lu Xilin, Zhou Ying, Chen Cong. Research progress on innovative earthquake-resilient structural systems [J]. Earthquake Engineering and Engineering Dynamics, 2014, 34(4): 130-139. (in Chinese)
[2] 周颖, 吕西林. 摇摆结构及自复位结构研究综述[J]. 建筑结构学报, 2011, 32(9): 1-10.
Zhou Ying, Lu Xilin. State-of-the-art on rocking and self-centering structures [J]. Journal of Building Structures, 2011, 32(9): 1-10. (in Chinese)
[3] 张富文, 许清风, 李向民. 摇摆墙结构体系研究进展[J]. 结构工程师, 2015, 31(6): 224-231.
Zhang Fuwen, Xu Qingfeng, Li Xiangmin. State-of-the-art on rocking wall structures [J]. Structural Engineers, 2015, 31(6): 224-231. (in Chinese)
[4] 吴守君, 潘鹏, 张鑫. 框架-摇摆墙结构受力特点分析及其在抗震加固中的应用[J]. 工程力学, 2016, 33(6): 54-60.
Wu Shoujun, Pan Peng, Zhang Xin. Characteristics of frame rocking wall structure and its application in a seismic retrofit [J]. Engineering Mechanics, 2016, 33(6): 54-60. (in Chinese)
[5] 曲哲, 和田章, 叶列平. 摇摆墙在框架结构抗震加固中的应用[J]. 建筑结构学报, 2011, 32(9): 11-19
Qu Zhe, Wada Akira, Ye Lieping. Seismic retrofit of frame structures using rocking wall system [J]. Journal of Building Structures, 2011, 32(9): 11-19. (in Chinese)
[6] Zibaei H, Mokari J. Evaluation of seismic behavior improvement in RC MRFs retrofitted by controlled rocking wall systems [J]. The Structural Design of Tall and Special Buildings, 2014, 23(13): 995-1006.
[7] Grigorian C, Grigorian M. Performance control and efficient design of rocking-wall moment frames [J]. Journal of Structural Engineering, 2016, 142(2): 04015139.
[8] Grigorian M, Tavousi S. Innovations in rocking wall-frame systems-theory and development [J]. International Journal of Advanced Structural Engineering, 2017, 9(3): 205-217.
[9] Wu S, Pan P, Nie X, et al. Experimental investigation on reparability of an infilled rocking wall frame structure [J]. Earthquake Engineering & Structural Dynamics, 2017, 46(15): 2777-2792.
[10] 曹海韵, 潘鹏, 吴守君, 等. 框架-摇摆墙结构体系中连接节点试验研究[J]. 建筑结构学报, 2012, 33(12): 38-46.
Cao Haiyun, Pan Peng, Wu Shoujun, et al. Experimental study of connections of frame-rocking wall system [J]. Journal of Building Structures, 2012, 33(12): 38-46. (in Chinese)
[11] 曹海韵. 框架摇摆墙结构抗震性能研究[D]. 北京: 清华大学, 2012.
Cao Haiyun. Study on seismic performance of Frame-rocking wall structure [D]. Beiing: Tsinghua University, 2012. (in Chinese)
[12] 杨树标, 谢波涛, 余丁浩, 等. 内嵌式框架-摇摆墙结构振动台试验研究分析[J]. 建筑科学, 2014, 30(9): 31-35.
Yang Shubiao, Xie Botao, Yu Dinghao, et al. Shaking table test analysis of frame structure with built-in rocking Wall [J]. Building Science, 2014, 30(9): 31-35. (in Chinese)
[13] 杨树标, 闫路路, 贾剑辉, 等. 摇摆墙刚度对框架摇摆墙结构抗震性能的影响分析[J]. 世界地震工程, 2014, 30(4): 27-33.
Yang Shunbiao, Yan Lulu, Jia Jianhui, et al. Influence of rocking wall stiffness on seismic behavior of frame rocking wall structure [J]. World Earthquake Engineering, 2014, 30(4): 27-33. (in Chinese)
[14] 杨树标, 赵国琴, 贾剑辉, 等. 内嵌式摇摆墙刚度对框架结构抗震性能的影响[J]. 山西建筑, 2015, 41(29): 34-35.
Yang Shubiao, Zhao Guoqin, Jia Jianhui, et al. The influence of the stiffness of the embedded rocking wall on the seismic performance of the frame structure [J]. Shanxi Architecture, 2015, 41(29): 34-35. (in Chinese)
[15] 张富文, 李向民, 许清风, 等. 框架-摇摆墙结构抗震性能试验研究[J]. 建筑结构学报, 2015, 36(8): 73-81.
Zhang Fuwen, Li Xiangmin, Xu Qingfeng, et al. Experimental study on seismic behavior of frame- rocking wall structure [J]. Journal of Building Structures, 2015, 36(8): 73-81. (in Chinese)
[16] 张富文, 李向民, 陈玲珠, 等. 一种框架摇摆墙结构的实现形式及其有限元分析[J]. 振动与冲击, 2016, 35(17): 213-217.
Zhang Fuwen, Li Xiangmin, Chen Lingzhu, et al. Design and finite element analysis for a new frame-rocking wall structure [J]. Journal of Vibration and Shock, 2016, 35(17): 213-217. (in Chinese)
[17] JGJ/T 101―2015, 建筑抗震试验规程 [S]. 北京: 中国建筑工业出版社, 2015.
JGJ/T 101―2015, Specification of testing methods for earthquake resistant building [S]. Beijing: China Architecture & Building Press, 2015. (in Chinese)
[18] GB/T 50152―2012, 混凝土结构试验方法标准[S]. 北京: 中国建筑工业出版社, 2012.
GB/T 50152―2012, Testing methods of concrete structure [S]. Beijing: China Architecture & Building Press, 2012 (in Chinese)
EXPERIMENTAL STUDY ON THE SEISMIC PERFORMANCE OF FRAME-PRESTRESSED ROCKING WALL STRUCTURES
Abstract: A new frame-prestressed rocking wall structure was presented in this paper, in which the foot area of the rocking wall was replaced by two rubber blocks. The wall was connected with the foundation by the embedded unbonded tendons and was connected to the columns of the frame with six I-shaped steel connectors. The seismic behavior of specimens including the failure mode, strength, stiffness degradation and energy dissipation capacity was studied through quasi-static tests of a frame specimen and a frame-prestressed rocking wall specimen. The results show that the deformation of the frame-prestressed rocking wall was effectively concentrated in the energy consumption connectors, while the damage to the ends of the beams and columns and the core area of beam-column joints was relatively light. The ultimate strength was greatly increased by 112.4% compared to the control frame. The hysteretic energy dissipation capacity was increased significantly, and the deformation of each story tended to be uniform to avoid story yielding mechanism. The I-type energy dissipation connectors had shown good ductility and deformability, which were replaceable and cheap. The combination of the replaceable components and the rocking wall structure was realized.
Key words: frame-prestressed rocking wall; energy consumption connector; replaceable; seismic performance; quasi-static test
文章编号:1000-4750(2019)04-0167-10
中图分类号:TU375.4
文献标志码:A
doi:10.6052/j.issn.1000-4750.2018.02.0096
收稿日期:2018-02-08;
修改日期:2018-11-18
基金项目:国家“十三五”重点研发计划项目(2017YFC0702900);上海市优秀技术带头人计划项目(16XD1422400)
张富文(1982―),男,山东嘉祥人,高工,博士,从事工程结构抗震与加固研究(E-mail: 2004_zhang@tongji.edu.cn).